RESIDENTIAL

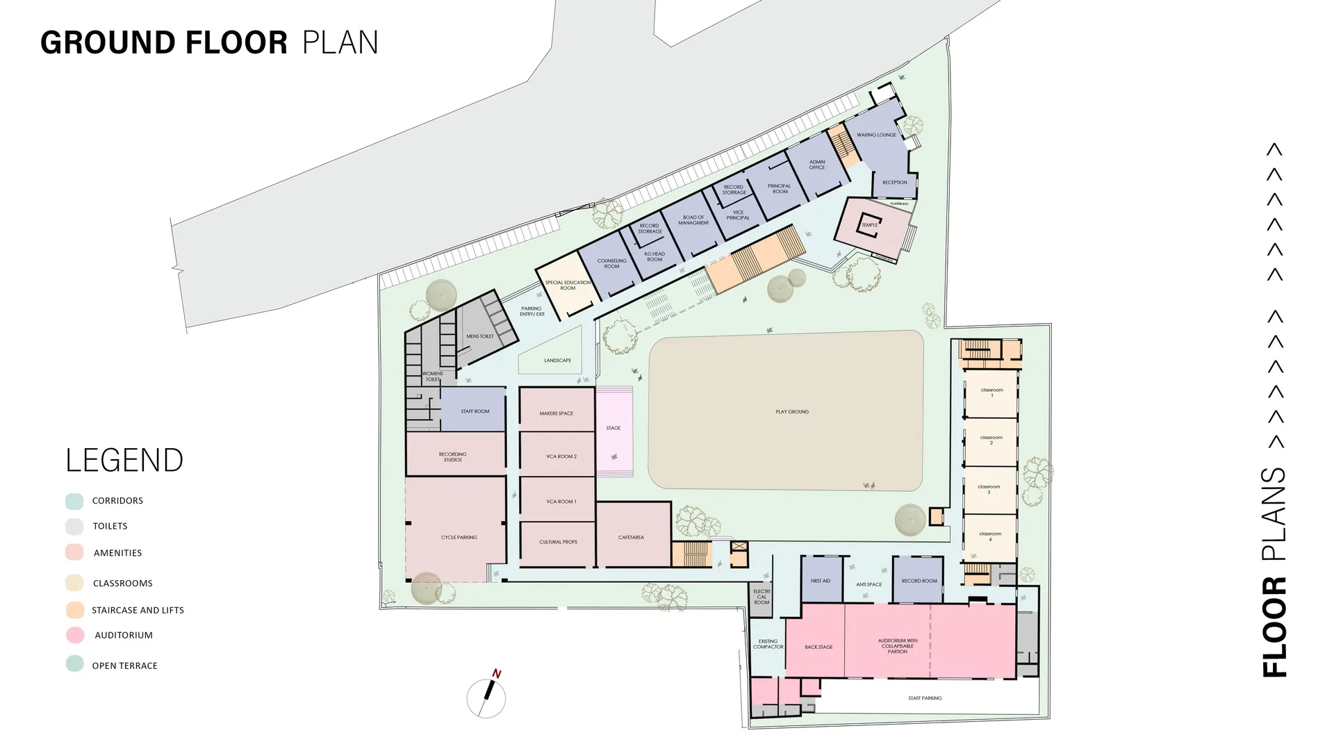
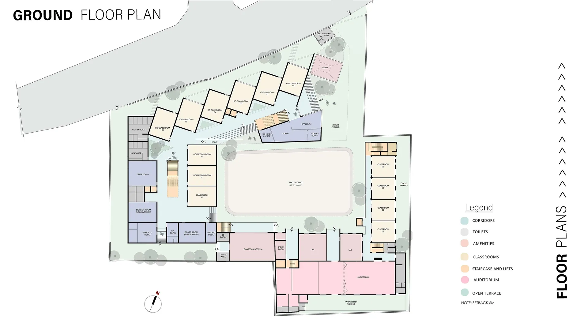
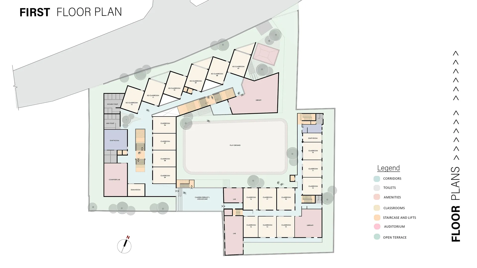
KSV School

LOCATION

KSV School

CLIENT

PROGRAMME

Residential Architecture

KSV School

Project Overview

Just Drop us your Queries to Get Started with your Dream

Share us your idea, we will design the rest to bring it to live.


GET A FREE QUOTE