Mannivakkam – Mr Babu Prakash Residence
LOCATION
Mannivakkam @Chennai
CLIENT
PROGRAMME
Residential Architecture
Individual bungalow Architecture Design – Mannivakkam Mr.Babu Prakash Residence
Project Overview
Individual bungalow Architecture Design – Mannivakkam Mr.Babu Prakash Residence
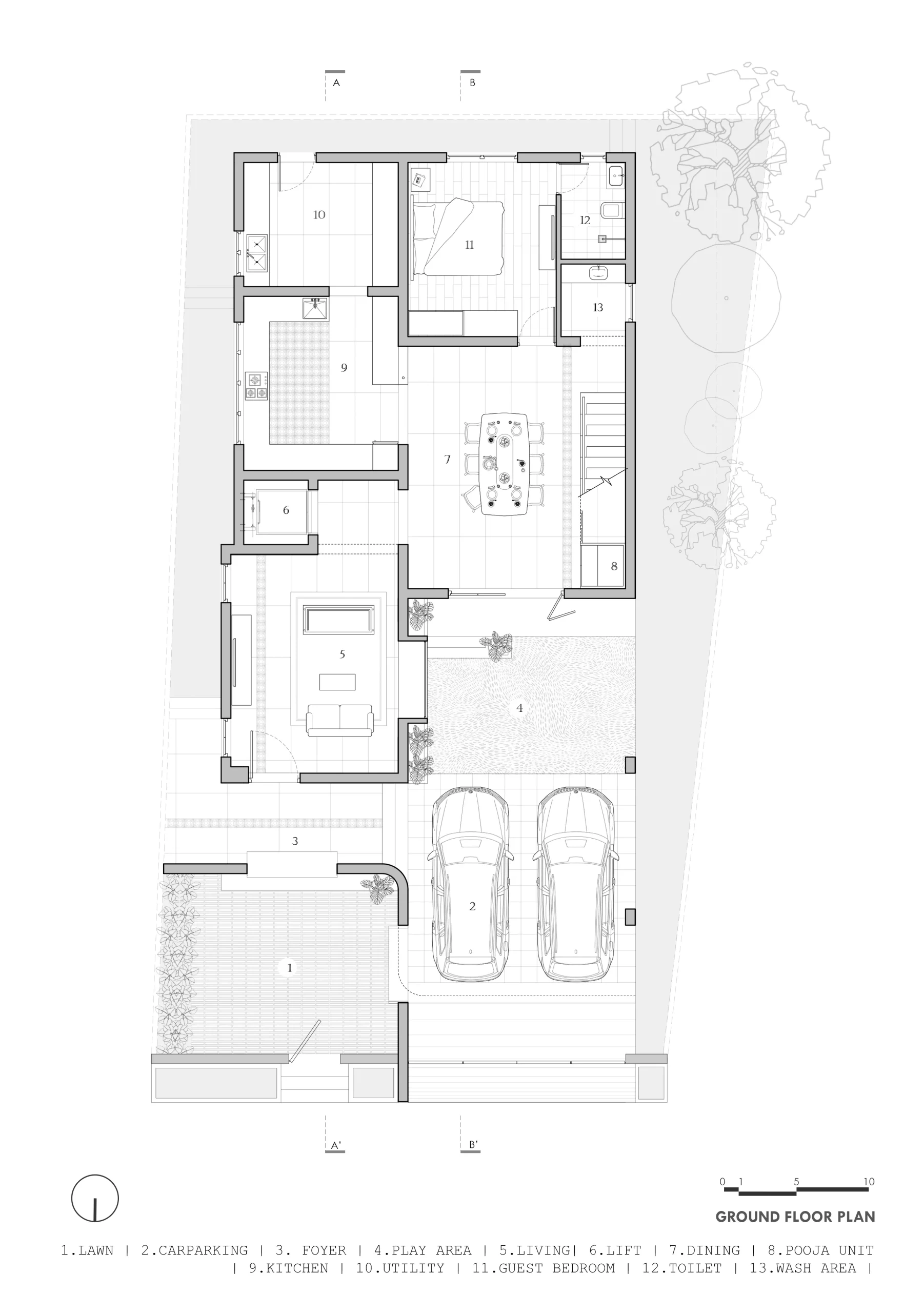
Located in Mannivakkam, Chennai, Harmony House is conceived as an architectural synthesis that brings together two distinct sensibilities: modern Japanese-Scandinavian minimalism and earthy, traditional Indian architectural expression. Set within Chennai’s tropical climate—characterized by intense afternoon heat and strong solar exposure—the design integrates climate-responsive strategies to ensure thermal comfort while maintaining a clear conceptual narrative.
The residence was designed for a family of four whose design preferences differed significantly. The husband gravitated toward the restrained aesthetics of Scandinavian and Japanese minimalism, while the wife preferred grounded, traditional architectural expressions rooted in texture and craft. Rather than prioritizing one approach over the other, the design embraces coexistence, allowing both philosophies to shape the home’s spatial and material identity.
The architectural framework is organized around two primary spatial elements—L-Wall 1 and L-Wall 2—which structure the house while defining its climatic and experiential layers. L-Wall 1 forms the primary enclosure at the ground level, wrapping around the entrance court and anchoring the residence within the site. Constructed with terracotta cladding and brick jali screens, this wall establishes a tactile architectural base while filtering sunlight and enabling cross-ventilation.
Interlocking with this primary wall is L-Wall 2, a secondary spatial layer that rises above and encloses a semi-open terrace at the mezzanine level. This terrace is accessed through an internal bridge that spans the central courtyard. Positioned along the western edge. The interlocking relationship between the two L-walls creates a layered architectural composition where solids, voids, and circulation work together to shape the spatial experience.
At the centre of the home lies a courtyard, which functions as both a spatial anchor and a passive cooling device. The courtyard promotes natural ventilation and daylight penetration while visually connecting multiple levels of the residence. The internal bridge that crosses this courtyard becomes both a circulation spine and a climatic buffer.
The elevation expresses the coexistence of the inhabitants’ identities through contrasting material languages. The grounded geometry of the L-walls and delicate line art integrated within the bridge represent the wife’s rooted aesthetic. In contrast, the husband’s expression appears through a cyan-accented balcony and fluid parametric metal screens that extend across the bridge and façade, introducing rhythm, lightness, and a contemporary character.
The material palette reinforces this dialogue. Terracotta cladding, exposed brick, and traditional brick jali screens anchor the house in warmth and craft, while perforated metal half-tone screens and cyan accents introduce modern precision. This synthesis is also reflected in the staircase, where a folded-plate outer shell expresses modern abstraction while traditional brick steps symbolize grounded heritage.
Guided by Japanese minimalism, the interiors remain uncluttered and calm. Living, dining,bedrooms and informal living spaces flow around the courtyard, maximizing daylight and cross-ventilation. Openable jali panels allow visual connections across courytyard, balconies, and living spaces, creating a breathable and interconnected domestic environment.
Through its layered materiality and climate-responsive planning, Harmony House demonstrates that architectural harmony emerges not from uniformity, but from the thoughtful coexistence of distinct identities, materials, and spatial experiences.
Just Drop us your Queries to Get Started with your Dream
Share us your idea, we will design the rest to bring it to live.
GET A FREE QUOTE
Reach Us
Office – Chennai
D.L.E.A
No.16/1 Malavia apartment
Malavia Avenue
Thiruvanmaiyur.
Chennai 600041
The dialogue between Client and Architect is about as intimate as any conversation you can have, because when you are talking about building a house, you are talking about dreams.
-Robert A.M. Sterns
Spend a lot of time talking to customers face to face. You would be amazed how many companies don’t listen to their customers.
-Ross Perot
